Contattaci + 39 06 39915372
Torna al Sito
Sei già un nostro cliente?
Effettua l'accesso
Entra
Password dimenticata?
Sei un nuovo cliente? Registrati subito!
Loading...
PRINT

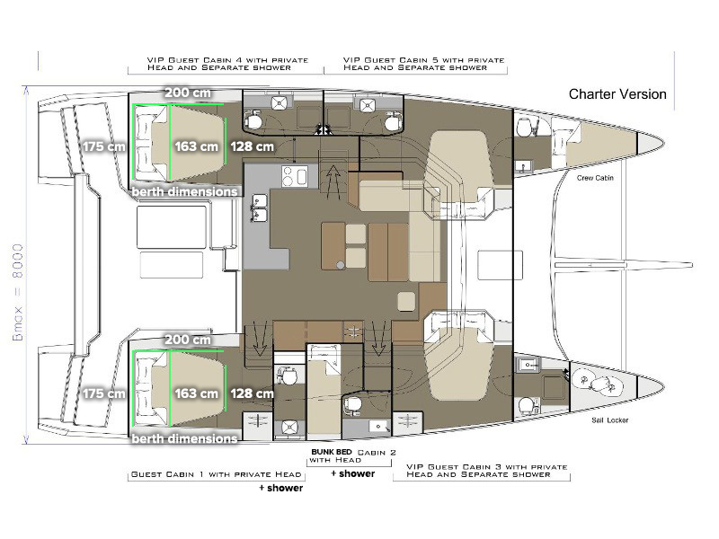
Dufour Catamaran 48 2019 - SEAVEN - Marina Kaštela

Marina Kaštela
dal 18/04/2026 al 25/04/2026
9.050
Tipologia: Catamarano
Anno: 2019
Lunghezza: 14.70 m.
Persone: 10
Cabine: 5
WC / Docce: 5
section
Equipaggiamento & Accessori
EchosounderDivider Carte nauticheManualeTavolo in pozzettoSalpa ancora elettricoFenders x 6 Anchor and chainMooring ropes (20m)Cuscini in pozzettoWinch - manualPozzetto in teakTender davitsGPS Plotter FlybridgeTridata instrumentPilota automaticoAISRadio VHFWinch - electricGangway - plankScaletta per il bagnoPonte in teakAC - cabinsAC - salonGeneratoreInverterAncora di rispettotender Highfield CL 360 + Honda 20 HPBeach towelsBedlinenCoffee machineDishwasherElectric owenFreezer (l)StoviglieHair dryerIce maker Refrigerator (l)Stove - gasAsciugamaniWashing machineSaloon curtainsLed interior lightsGenoa: self tacking jibSelf tacking jibSummer tent - sun shades in cockpitHard top - cockpitFull battened mainsailLazy jack/Lazy bagGenoa avvolgibileFlybridge cushionsDistress flare boxLifejacketsHorseshoe lifebuoyLifebelts (safety harness)Set of toolsBinocoloSafety boxFirst aid boxEstintoreZattera di salvataggioBilge pump - electricSaloon table12V plugBluetoothSpeakers on flybridgeWIFISUPRadioUSB sockets - salonUnderwater lights220V socketsUSB sockets - cabinsAUXSpeakers - cockpitSpeakers - saloonSnorkeling equipment WC elettriciMooring kit: 25 kg anchorsWindlass control chain counterService batteries
Extra obbligatori
  • Comfort package C 2026 (includes final cleaning, bed sheets, bath & hand towels, beach towels, tea towels, 10 coffee pods, shampoo & shower gel and soap, dish soap & sponge, garbage bags, toilet paper, wine diver's inspection upon check-out
    €720.0
  • SUP
    €0.0
  • Croatian Tourist Tax (1.33 € per person/night)
    €1.33
  • No discount
    €0.0
Extra opzionali
  • Bluetooth speaker (portable) JBL Xtreme 2 GM (limited and on request only)
    €50.0
  • Beach towels (per person)
    €7.0
  • E-FOIL Fliteboard AIR 3.0 (plus security deposit 700 EUR)
    €2000.0
  • Fishing gear (professional set)
    €240.0
  • Decktent (medium size)
    €200.0
  • Safety net / sailing boats and catamarans up to 48 ft
    €170.0
  • Tiwal 3 & 7 m2 sail
    €500.0
  • Snorkeling equipment - 1 set per person
    €15.0
  • FUN PACK B - (Highfield OM 540 + 100HP Honda, Wakeboard, waterskis, banana, donut) -plus security deposit 1000 EUR.Fun Pack rib is to be towed and can be used in Croatian waters only
    €1700.0
  • Snorkeling equipment - 3 sets
    €30.0
  • JBL Karaoke Partybox
    €110.0
  • Fishing gear (basic set)
    €150.0
  • JET SKI SEADOO 90HP-plus deposit 1200 EUR - LICENCE IS REQUIRED Jet ski is available for one way charters, with extra delivery fee 400 euro
    €950.0
  • Sports equipment (weights: 2x5kg, 2x7,5 kg, 2x15kg, push-up grips, yoga mat - limited)
    €170.0
  • Seabob F5S - plus security deposit 500 EUR
    €1200.0
  • SUP
    €100.0
  • Cook (meals not included, separate cabin and toilet needs to be given for accommodation if not in the front peak. Cook details will be provided three days prior to charter)
    €1820.0
  • Hostess (meals not included, separate cabin and toilet needs to be given for accommodation if not in the front peak. Hostess details will be provided three days prior to charter)
    €1610.0
  • Exclusive Comfort package (Includes damage waiver - comfort package) +770 EUR refundable
    €1020.0
  • Early check-in (14:00) - (limited and available only for bareboat charters to be confirmed only on the check-in date in the charter base)
    €270.0
  • JET SKI 180 HP (2022)-plus deposit 1200 EUR - LICENCE IS REQUIRED Jet ski is available for one way charters, with extra delivery fee 400 euro
    €1900.0
  • Swimming platform 3x3 m
    €350.0
  • Skipper from 48' (meals not included, separate cabin and toilet needs to be given for accommodation if not in the front peak, Skipper details will be provided three days prior to charter)
    €1820.0
  • Seabob F5 - plus security deposit 500 EUR
    €900.0
  • Extra towels set (per person)
    €8.0
  • Gas BBQ Weber Q1200 black
    €100.0
  • Fatboy bean bag (2 x Fatboy bean bag chairs in set)
    €120.0
  • Seabob fast charger
    €50.0
  • KAYAK -2 seats version
    €120.0
  • Portable refrigerator CF 45 / 12 volt
    €100.0
  • Starlink
    €150.0
  • Masseuse / Nanny / Yoga / Fitness Instructor- ON REQUEST (from 200 €-300 €/day; meals not included, separate cabin, toilet and food obligatory, details will be provided three days prior to charter)
    €220.0
  • Fun Pack skipper surcharge - (only applicable for skippered bookings with Fun Pack). No security deposit required
    €440.0
  • FUN PACK C - (Highfield 640 + 150HP Honda, Wakeboard, waterskis, banana, donut) plus security deposit 1000 EUR.Fun Pack rib is to be towed and can be used in Croatian waters only
    €2300.0
  • FUN PACK A - (Jokerboat Coaster 470 + 70HP Yamaha, Wakeboard, Waterskis, Banana, Donut)plus security deposit 1000 EUR.Fun Pack rib is to be towed and can be used in Croatian waters only
    €1300.0
  • One way fee catamarans up to 48' (includes: full 7-days charter, operational/logistics fee, mooring fee in Dubrovnik not included) - ON REQUEST ONLY
    €660.0
  • Kneeboard
    €110.0
  • Extra bedlinen (per person)
    €5.0
Riepilogo offerta
Dufour Catamaran 48 2019 - SEAVEN - Marina KaštelaDufour Yachts
9.050
Patente nautica necessaria
Ti occorre lo Skipper?
Inviami questa offerta Opziona/Prenota Chiedi info per questa Barca
Marina Kaštela
Imbarco:18/04/2026
ora:18:00
Sbarco:25/04/2026
ora:8:00

La barca deve essere riportata alla base entro le 18:00 con il pieno del carburante il giorno prima dello sbarco.
Scarica la scheda tecnica
Condividi
Contattaci al telefono
 +39 0639915372
Pianifica la tua vacanza con i nostri consigli, gratuitamente.

Lun-Ven: 10.00-19.00
Sab-Dom: 10.00-19.00

Inviami offerta per questa barca


Invia  
Inviami info per questa barca


Invia